Victoria Street, Englefield Green
£499,000
OIRO
Sold STC
Property Features
- Versatile Family Accommodation
Property Summary
We are pleased to bring to the market one of these pretty townhouses, situated in the heart of the village, within a short walk to the various shops, pubs, restaurants and schools. This could be ideal for a family with its excellent accommodation.
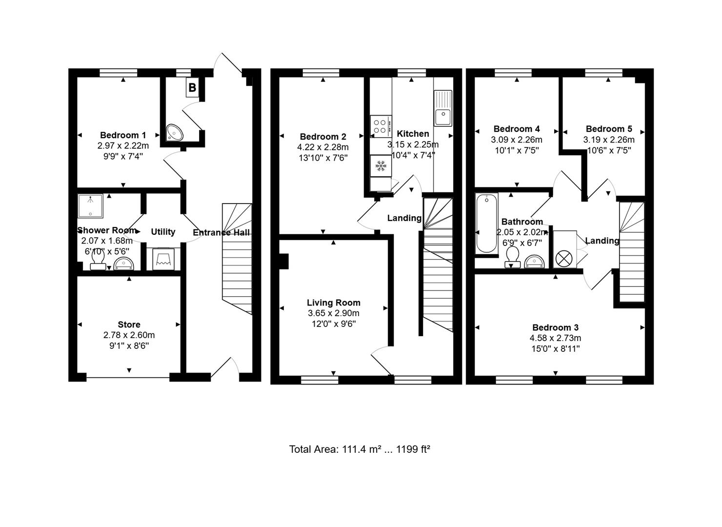
The accommodation is laid out over three floors, with an entrance hall, downstairs bedroom with shower room next to it, large store room (part of the former garage) and access to the good size rear garden. On the first floor is a living room, separate fitted kitchen and a further bedroom, whilst on the second floor are 3 further bedrooms and a bathroom.
The property benefits from a gas central heating system to radiators, double glazed windows, off road parking and an 80' rear garden. Egham's comprehensive shops and main-line train station is about 1.25 miles away. The property is offered with 'no onward chain'. EPC Rating: E.
The accommodation is laid out over three floors, with an entrance hall, downstairs bedroom with shower room next to it, large store room (part of the former garage) and access to the good size rear garden. On the first floor is a living room, separate fitted kitchen and a further bedroom, whilst on the second floor are 3 further bedrooms and a bathroom.
The property benefits from a gas central heating system to radiators, double glazed windows, off road parking and an 80' rear garden. Egham's comprehensive shops and main-line train station is about 1.25 miles away. The property is offered with 'no onward chain'. EPC Rating: E.

















