Staines Road West, Sunbury-On-Thames
£750,000
Asking Price
For Sale
Property Features
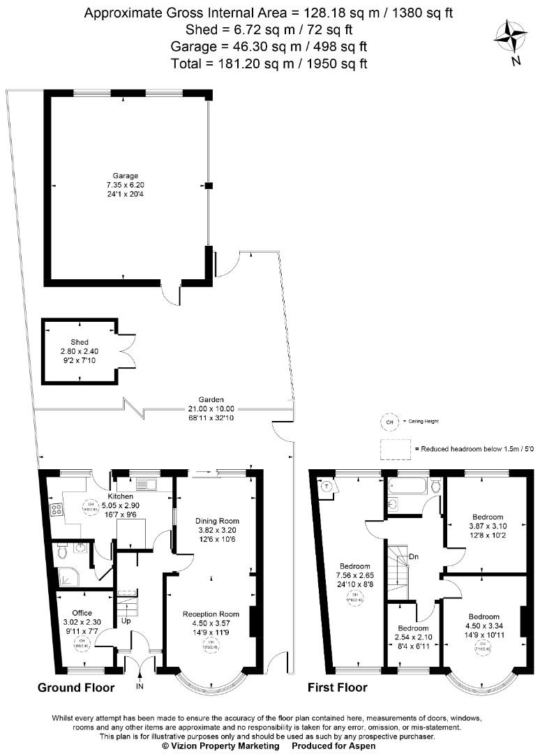
- Deceptively spacious four-bedroom detached family home on a generous corner plot
- Extended layout featuring two reception rooms and a high-specification kitchen/breakfast room
- Contemporary downstairs shower room ideal for busy family living
- Large south-facing rear garden, recently landscaped with new fencing and high-quality patio
- Ample rear parking for three cars plus a substantial 24ft x 20ft triple garage with double electric doors
- Garage provides additional secure parking, storage, or workshop space
- Four generous bedrooms with potential to extend into the large loft (subject to planning permission)
- Sold with no onward chain, offering a straightforward and appealing purchase opportunity
Property Summary
This well-presented and deceptively spacious four-bedroom detached family home occupies a generous corner plot and offers an impressive blend of modern comfort and versatile living space. Extended to create two reception rooms, a recently fitted high-specification kitchen/breakfast room, and a contemporary downstairs shower room, the property is well suited to growing families. The recently landscaped south-facing rear garden provides an excellent outdoor retreat, featuring brand-new fencing, a large premium patio, and pathways connecting the front and rear of the home.
To the rear, the property benefits from parking for three cars in addition to a substantial 24ft x 20ft triple-size garage with double electric doors, offering further secure parking or exceptional storage and workshop potential. Upstairs, four generous bedrooms provide ample space for family living, while the sizeable loft presents an opportunity for future expansion, subject to planning permission. Offered with no onward chain, this is a rare chance to acquire a versatile and beautifully maintained home with excellent potential in a desirable position. Call Alex White and his market leading sales team at Aspen estate agents.
To the rear, the property benefits from parking for three cars in addition to a substantial 24ft x 20ft triple-size garage with double electric doors, offering further secure parking or exceptional storage and workshop potential. Upstairs, four generous bedrooms provide ample space for family living, while the sizeable loft presents an opportunity for future expansion, subject to planning permission. Offered with no onward chain, this is a rare chance to acquire a versatile and beautifully maintained home with excellent potential in a desirable position. Call Alex White and his market leading sales team at Aspen estate agents.






















