Park Road, Ashford
£600,000
Guide Price
For Sale
Property Features
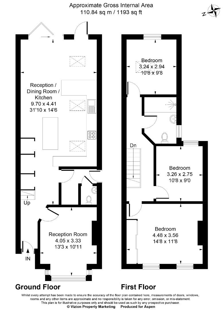
- Three generously sized double bedrooms
- Extended and fully refurbished to a high standard throughout
- Stunning 31ft open-plan kitchen/living area with stone worktops
- Velux windows and bi-folding doors creating a bright, airy living space
- Separate reception room for added flexibility
- Ground floor guest W.C.
- Very large southerly facing garden, ideal for entertaining and family life
- Prime location close to schools, parks, town centre, and mainline station
Property Summary
This beautifully presented three double bedroom extended semi-detached family home is set on a highly sought-after residential road, perfectly positioned within easy reach of local schools, recreation parks, and just a short walk from the town centre and mainline station. Recently extended and refurbished to an exceptional standard, the property combines modern living with practical family space, offering both style and comfort throughout.
At the heart of the home is a stunning open-plan kitchen/living area measuring over 31ft, complete with a bespoke fitted kitchen featuring stone worktops, Velux windows, and bi-folding doors that open seamlessly to the large rear private garden, flooding the space with natural light. A separate reception room provides additional flexibility, while the ground floor also benefits from a guest W.C. Upstairs, three generously sized double bedrooms are complemented by a beautifully appointed family bathroom. Outside, the substantial garden offers plenty of space for outdoor living and entertaining, making this an ideal home for growing families. Call Alex White and his market leading sales team at Aspen estate agents.
At the heart of the home is a stunning open-plan kitchen/living area measuring over 31ft, complete with a bespoke fitted kitchen featuring stone worktops, Velux windows, and bi-folding doors that open seamlessly to the large rear private garden, flooding the space with natural light. A separate reception room provides additional flexibility, while the ground floor also benefits from a guest W.C. Upstairs, three generously sized double bedrooms are complemented by a beautifully appointed family bathroom. Outside, the substantial garden offers plenty of space for outdoor living and entertaining, making this an ideal home for growing families. Call Alex White and his market leading sales team at Aspen estate agents.






















