Mill House Lane, Thorpe
£450,000
Asking Price
Sold STC
Property Features
- Character Cottage
- 2-Double Bedrooms
- Kitchen Breakfast Room Plus Utility
- Two Large Reception Rooms
- Bathroom & Cloakroom
- Far Reaching Rear Views
- Extensive Gardens
- Double Carport
- Gated Driveway
- EPC Rating: D / Council Tax Band: D
Property Summary
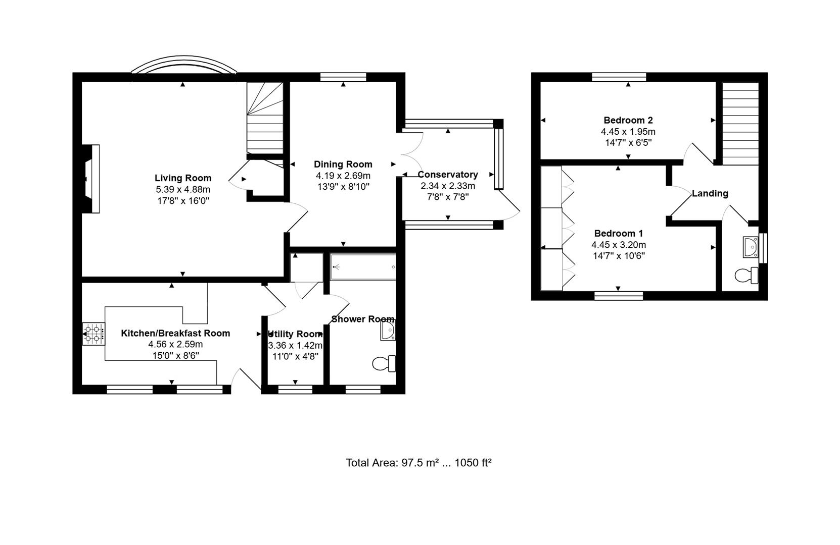
Nestled on Mill House Lane in the picturesque area of Egham, this charming semi-detached bungalow offers a delightful blend of character and comfort. Built in 1900, the property spans an impressive 1,087 square feet and is ideally situated close to the idyllic village of Thorpe, making it a perfect retreat for those seeking a tranquil lifestyle.
As you approach the home, you will be greeted by a gated entrance that leads to a stylish 'barn style' double carport, providing ample parking for two vehicles, along with a spacious driveway that accommodates several more. The exterior of the property is complemented by extensive gardens that envelop the home, offering far-reaching views of the surrounding farmland, perfect for enjoying the beauty of nature.
Inside, the bungalow features two well-proportioned bedrooms, a bathroom and additional cloakroom,. The heart of the home is undoubtedly the two reception rooms, one of which is exceptionally large, providing an inviting space for relaxation and entertaining. A charming brick feature fireplace adds a touch of warmth and character, making it an ideal spot for cosy evenings.
This property is a rare find, combining the charm of a period home with the practicality of modern living. Whether you are looking to downsize or seeking a peaceful retreat, this bungalow on Mill House Lane is sure to impress. Don't miss the opportunity to make this delightful home your own.
NO ONWARD CHAIN
As you approach the home, you will be greeted by a gated entrance that leads to a stylish 'barn style' double carport, providing ample parking for two vehicles, along with a spacious driveway that accommodates several more. The exterior of the property is complemented by extensive gardens that envelop the home, offering far-reaching views of the surrounding farmland, perfect for enjoying the beauty of nature.
Inside, the bungalow features two well-proportioned bedrooms, a bathroom and additional cloakroom,. The heart of the home is undoubtedly the two reception rooms, one of which is exceptionally large, providing an inviting space for relaxation and entertaining. A charming brick feature fireplace adds a touch of warmth and character, making it an ideal spot for cosy evenings.
This property is a rare find, combining the charm of a period home with the practicality of modern living. Whether you are looking to downsize or seeking a peaceful retreat, this bungalow on Mill House Lane is sure to impress. Don't miss the opportunity to make this delightful home your own.
NO ONWARD CHAIN























