Englehurst, quiet road 5 minutes’ from Uni
£525,000
OIRO
For Sale
Property Features
- Great Investment Property
- Let Out To 5 Students
- New Tenancy at £3,300 to 30/06/2027
- Double Glazed & Gas C.H.
- Upstairs Shower Room
- Downstairs Cloakroom
- Fitted Kitchen with Appliances
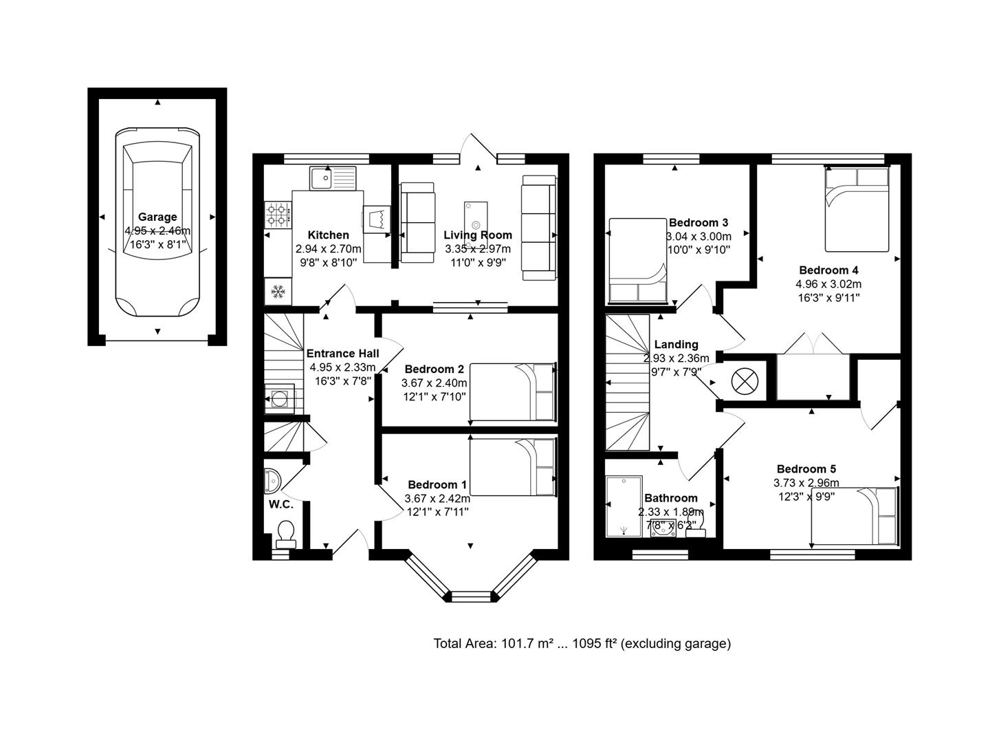
- 5 Double Bedrooms
- Garage in Block
- All Furniture Included
Property Summary
INVESTMENT BUYERS ONLY. This 5 double bedroom property is located in a quiet and well regarded residential area, just a short walk of the main entrance to Royal Holloway University, so is always one of the first properties to let out. The local shops are just across the road and the village green and local pubs are all within a short walk.
It is currently let out to students and a new tenancy is in place up to 30th June 2027 at a rent of £3,300pcm (not including the garage), GIVING A GROSS YIELD OF 7.54%! (Our reduced Let Only fee of 5%+VAT fee will need to be deducted from the rent). The students love this property as it is one of the rare ones that has 5 Double bedrooms, a downstairs w.c. upstairs shower room and a communal living room with access onto the secluded rear garden. There is a good size modern kitchen with fitted appliances, double glazed windows and a gas central heating system to radiators. This property is also somewhat future-proofed with an EPC Rating of 'C'.
It is currently let out to students and a new tenancy is in place up to 30th June 2027 at a rent of £3,300pcm (not including the garage), GIVING A GROSS YIELD OF 7.54%! (Our reduced Let Only fee of 5%+VAT fee will need to be deducted from the rent). The students love this property as it is one of the rare ones that has 5 Double bedrooms, a downstairs w.c. upstairs shower room and a communal living room with access onto the secluded rear garden. There is a good size modern kitchen with fitted appliances, double glazed windows and a gas central heating system to radiators. This property is also somewhat future-proofed with an EPC Rating of 'C'.


















