Englehurst, Englefield Green,
£535,000
Offers Over
For Sale
Property Features
- End of Terrace
- BESPOKE GARDEN HOME OFFICE (YEAR ROUND USE)
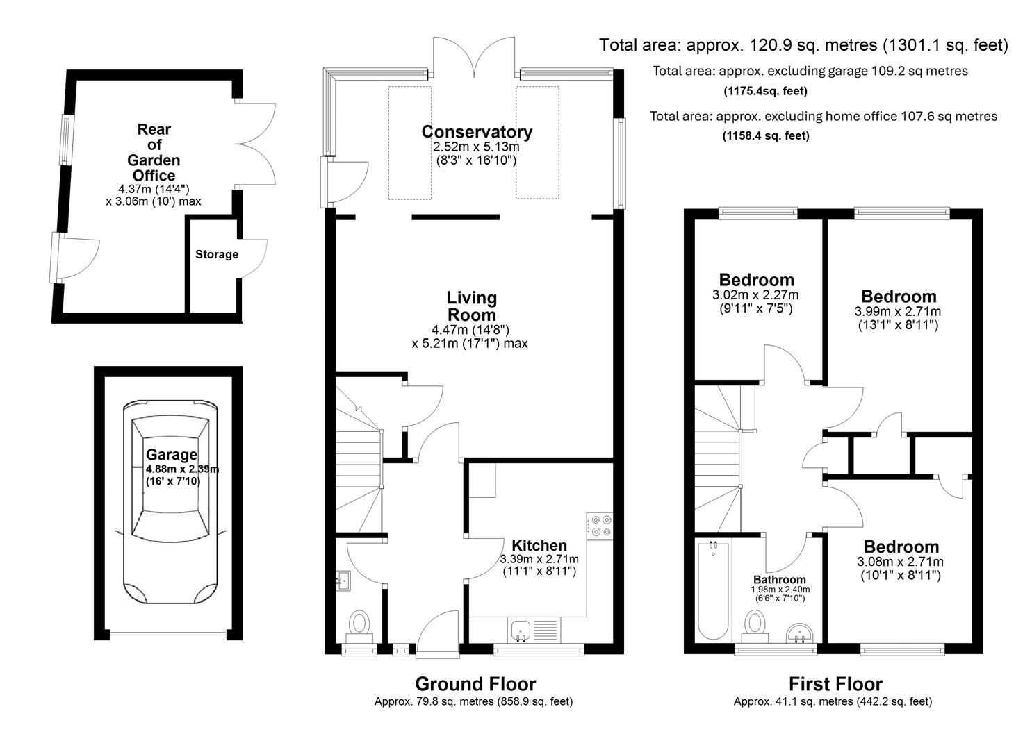
- 3 Spacious Bedrooms
- 2 Reception Rooms
- Garage with Power/Additional Parking
- EPC Rating: C / Council Tax Band: E
Property Summary
A Superb End-of-Terrace Three-Bedroom Family Home in the Heart of Englefield Green.
Situated in the highly sought-after village of Englefield Green, this superb end-of-terrace three-bedroom family home has been thoughtfully extended on the ground floor to provide an additional reception room and a versatile layout perfectly suited to modern family living. The property also benefits from a most impressive custom built garden home office, complete with power and lighting — ideal for all year round remote working.
Upon entering, you are welcomed by a bright and inviting entrance hall, providing access to the cloakroom, staircase to the first floor, a well-proportioned kitchen, and the generous living room. The living room offers the perfect space for both relaxation and entertaining, forming a comfortable and sociable hub at the heart of the home. The dining area overlooks the private rear garden, creating a light and airy focal point ideal for family gatherings. Upstairs, the property features three well-proportioned bedrooms and a contemporary family bathroom. The bedrooms benefit from cleverly adapted fitted wardrobes, providing ample and practical storage solutions.
The garage is conveniently positioned to the side of the property and is equipped with both power and lighting, making it particularly suitable for secure parking or charging an electric or hybrid vehicle. Further off-street parking adds to the home’s overall practicality. Externally, the home enjoys a private rear garden — perfect for outdoor dining and family activities — with direct access to the superb and versatile garden office.
Centrally located within Englefield Green, the property is within easy reach of local shops, cafés, excellent schools and transport links. The area remains particularly popular due to its proximity to amenities, highly regarded schools, Royal Holloway, University of London and Windsor Great Park.
Situated in the highly sought-after village of Englefield Green, this superb end-of-terrace three-bedroom family home has been thoughtfully extended on the ground floor to provide an additional reception room and a versatile layout perfectly suited to modern family living. The property also benefits from a most impressive custom built garden home office, complete with power and lighting — ideal for all year round remote working.
Upon entering, you are welcomed by a bright and inviting entrance hall, providing access to the cloakroom, staircase to the first floor, a well-proportioned kitchen, and the generous living room. The living room offers the perfect space for both relaxation and entertaining, forming a comfortable and sociable hub at the heart of the home. The dining area overlooks the private rear garden, creating a light and airy focal point ideal for family gatherings. Upstairs, the property features three well-proportioned bedrooms and a contemporary family bathroom. The bedrooms benefit from cleverly adapted fitted wardrobes, providing ample and practical storage solutions.
The garage is conveniently positioned to the side of the property and is equipped with both power and lighting, making it particularly suitable for secure parking or charging an electric or hybrid vehicle. Further off-street parking adds to the home’s overall practicality. Externally, the home enjoys a private rear garden — perfect for outdoor dining and family activities — with direct access to the superb and versatile garden office.
Centrally located within Englefield Green, the property is within easy reach of local shops, cafés, excellent schools and transport links. The area remains particularly popular due to its proximity to amenities, highly regarded schools, Royal Holloway, University of London and Windsor Great Park.
















