This property is not currently available. It may be sold or temporarily removed from the market.
Anglesey Close, Ashford
£550,000
Guide Price
Sold STC
Property Features
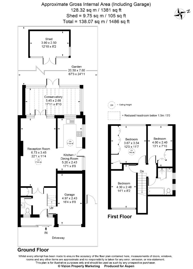
- Well-presented three-bedroom semi-detached family home
- Situated on one of Ashford’s most sought-after roads
- Short walk to the station, town centre, and excellent local schools
- Two bright and spacious reception rooms
- Large conservatory overlooking the beautifully kept rear garden
- Modern downstairs W.C. for added convenience
- Own driveway leading to an integral garage with internal access
- Three generously sized bedrooms and a stylish four-piece family bathroom
- Sunny 67 ft rear garden with well-maintained lawn and storage shed
- Sensibly priced and sold with no onward chain – ideal for families and commuters
Property Summary
This well-presented three-bedroom semi-detached family home is ideally located on one of Ashford’s most sought-after roads, just a short walk from the station, town centre, and several highly regarded local schools. The property offers excellent living space throughout, featuring two bright and spacious reception rooms, a large conservatory overlooking the garden, and a modern downstairs W.C. The integral garage is accessible via an interconnecting door from the house, complemented by a private driveway providing additional parking.
Upstairs, there are three generously sized bedrooms and a beautifully appointed four-piece family bathroom. The property is enhanced by a stunning 67 ft rear garden, immaculately maintained and enjoying a sunny aspect, complete with a useful storage shed. Offering an ideal combination of comfort, space, and convenience, this delightful home is sensibly priced and available with no onward chain, making it a perfect choice for families and commuters alike. Call Alex White and the most experienced local team, with over 120 years combined at Aspen estate agents, Ashford office.
Upstairs, there are three generously sized bedrooms and a beautifully appointed four-piece family bathroom. The property is enhanced by a stunning 67 ft rear garden, immaculately maintained and enjoying a sunny aspect, complete with a useful storage shed. Offering an ideal combination of comfort, space, and convenience, this delightful home is sensibly priced and available with no onward chain, making it a perfect choice for families and commuters alike. Call Alex White and the most experienced local team, with over 120 years combined at Aspen estate agents, Ashford office.














