This property is not currently available. It may be sold or temporarily removed from the market.
Albany Road, Old Windsor
£500,000
Offers Over
For Sale
Property Features
- NO CHAIN
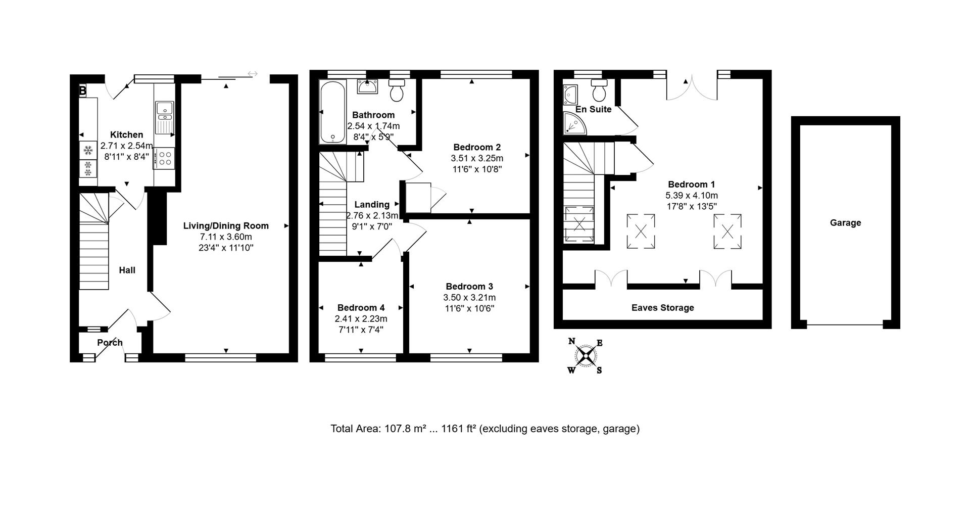
- 4-Bedrooms
- Master Suite with Juliette Balcony
- 2 Bathrooms
- Modern Kitchen
- Garage & Driveway Parking
- Well Presented Throughout
- Village Location
- Walking Distance to Windsor Great Park
- EPC Rating: C / Council Tax Band: D
Property Summary
NO CHAIN
A stunning 4-bedroom mid-terrace home, beautifully extended into the loft to create a truly exceptional master bedroom suite. Modernised throughout, this property is filled with an abundance of natural light, making it the perfect family home.
The bright and contemporary kitchen is a delight, offering ample cupboard storage and a range of integrated appliances to make cooking and entertaining a breeze. The spacious living/dining room is a warm and welcoming space, perfect for family gatherings. With a large front window and double doors leading to the low-maintenance garden.
The impressive top-floor master bedroom, complete with en-suite bathroom and a Juliette balcony offering rooftop views. The Velux window boasts views towards the iconic Copper Horse and Windsor Great Park. Three further bedrooms and a family bathroom located on the first floor.
Practicalities include a rear garage, located at the end of a block to the rear, and ample additional driveway parking to the front. The location is perfectly situated, with village shops, Windsor Great Park, and the Royal Windsor Farm Shop all just a few minutes' walk away. Windsor town centre is also conveniently close by.
An early viewing is highly recommended. By appointment.
A stunning 4-bedroom mid-terrace home, beautifully extended into the loft to create a truly exceptional master bedroom suite. Modernised throughout, this property is filled with an abundance of natural light, making it the perfect family home.
The bright and contemporary kitchen is a delight, offering ample cupboard storage and a range of integrated appliances to make cooking and entertaining a breeze. The spacious living/dining room is a warm and welcoming space, perfect for family gatherings. With a large front window and double doors leading to the low-maintenance garden.
The impressive top-floor master bedroom, complete with en-suite bathroom and a Juliette balcony offering rooftop views. The Velux window boasts views towards the iconic Copper Horse and Windsor Great Park. Three further bedrooms and a family bathroom located on the first floor.
Practicalities include a rear garage, located at the end of a block to the rear, and ample additional driveway parking to the front. The location is perfectly situated, with village shops, Windsor Great Park, and the Royal Windsor Farm Shop all just a few minutes' walk away. Windsor town centre is also conveniently close by.
An early viewing is highly recommended. By appointment.


















